双梁桥式起重机
您的位置:星空官方端网站登录入口 > 产品中心 > 双梁桥式起重机


QB型防爆桥式起重机所有电机、电器防爆性能符合GB3836.2-2000《爆炸性气体环境用电气设备第2部分:隔爆型“d”》、整机性能符合JB/T5897-2006《防爆桥式起重机》标准之规定,经国家指定的防爆产品检验单位检验合格,取得了《防爆合格证》。防爆标志分别为ExdIIBT4、ExdIICT4。
本产品适用于工厂内防爆能力不高于IIB或IIC级,引燃温度组别不低于T4组的可燃性气体或蒸气与空气形成的爆炸性气体混合物的场所,适用的危险区域为1区或2区(详见GB3836.1-2000)。
本产品一般为地面操作,根据用户需要也可以司机室操作。工作级别为中级。
Explosion-proofperformancesofallmotorsandelectriccomponentsofQBexplosion-proofcranesatisfystandardsstipulatedbyGB3836.2-2000Explosion-proofElectricEquipmentWorkinginExplosiveGasEnvircmmentPart2:Flame-proofType“D”,andtheperformanceofthecranesatisfiesdemandsinJB/T5897-1991Explosion-proofCrane.ThecranehasobtainedExplosion-proofCertificateafterpassingexaminationsbyunitsdesignatedbythegovernmenttotestexplosion-proofproducts.Theexplosion-proofmarksareExdIIBT4andExdIICT4respectively.
Thisproductissuitableforareaswheretheexplosion。transmissionisnothigherthanIIBorIICandtheignitiontemperaturegroupofinflammablegasorexplosivemixtureofsteamandgasisnotlowerthanT4.Applicabledangerouszonesarezone1andzone2(pleaserefertoGB3836.1-2000fordetails).
Thisproductisgenerallycontrolledontheground,butcontrolfromthedriver’scabinisalsoallowable.Theworkinggradeisintermediate.
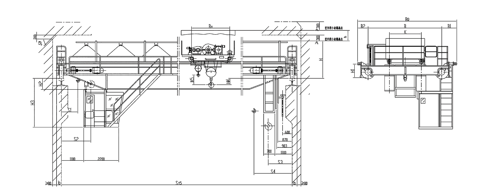
注:5-10t起重机无副钩
Note:5-10tcranedoesnothaveaauxiliaryhook.





友情链接:
| | |全国统一服务热线
400-0373-400
企业传真:0373-8612888
企业邮箱:hzqzj@163.com
地址:河南省长垣县位庄工业区
400-0373-400
扫一扫 关注我们